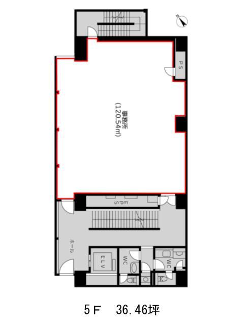
ノリタケ虎ノ門 5階
物件概要
ノリタケ虎ノ門のテナント募集中区画
| 階数 | 面積 | 賃料(共益費含む) | 保証金 | 入居可能日 | 検討リスト | 詳細 |
|---|---|---|---|---|---|---|
| 5 | 36.46坪 | 応相談(応相談) | 応相談 | 即 |
…新着物件
ノリタケ虎ノ門のアクセス
ノリタケ虎ノ門の物件情報
ノリタケ虎ノ門(港区虎ノ門)は虎ノ門駅(B6番出口)から徒歩2分の賃貸オフィスです。ノリタケ虎ノ門は虎ノ門駅(B6番出口)の他に虎ノ門ヒルズ駅(B4番出口)徒歩3分、霞ケ関駅(A12番出口)徒歩6分で利用も可能です。

