城山トラストタワー 9階
物件概要
物件番号
122-00005-621物件名
城山トラストタワー所在地
- 東京都港区虎ノ門4-3-1
- アクセスマップ
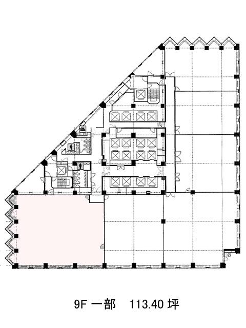
面積
113.40坪賃料(共益費含)
:応相談応相談
入居日
即保証金
応相談礼金
なし更新料
なし償却費
なし竣工
1991年11月構造
S造規模
地上37階/地下2階トイレ
男女別空調
エレベーター
有セキュリティ
駐車場
有耐震
新耐震基準基準階天井高
2600-3000mm空室延床面積
860.90坪情報更新日
2025/12/01城山トラストタワーのテナント募集中区画
| 階数 | 面積 | 賃料(共益費含む) | 保証金 | 入居可能日 | 検討リスト | 詳細 |
|---|---|---|---|---|---|---|
| 2 | 100.00坪 | 応相談(応相談) | 応相談 | 即 | ||
| 6 | 266.60坪 | 応相談(応相談) | 応相談 | 2026年3月上旬 | ||
| 9 | 113.40坪 | 応相談(応相談) | 応相談 | 即 | ||
| 25 | 193.90坪 | 応相談(応相談) | 応相談 | 即 | ||
| 35 | 187.00坪 | 応相談(応相談) | 応相談 | 2026年10月上旬 |
…新着物件
アクセス
城山トラストタワーの物件情報
城山トラストタワー(港区虎ノ門)は神谷町駅(4B番出口)から徒歩4分の賃貸オフィスです。地上37階建ての超高層物件。豊かな木々の中に佇み、品格が溢れています。
1フロアは最大約460坪の大規模空間。L字型の間取りで窓面が多く、採光性に優れています。男女別トイレと給湯室は全て室外に設置済み。共有部分はリニューアル工事を経ています。
ビル周辺はオフィスワーカーが行き交う環境ですが、大使館なども立地しているため落ち着いた雰囲気を保っています。城山トラストタワーは神谷町駅(4B番出口)の他に虎ノ門ヒルズ駅(A1番出口)徒歩9分、六本木一丁目駅(3番出口)徒歩9分で利用も可能です。

