6階は現在募集がありません

TOKYU REIT 虎ノ門ビル 6階

前の写真 次の写真

物件概要

物件番号

122-00050-100

物件名

TOKYU REIT 虎ノ門ビル

所在地

面積

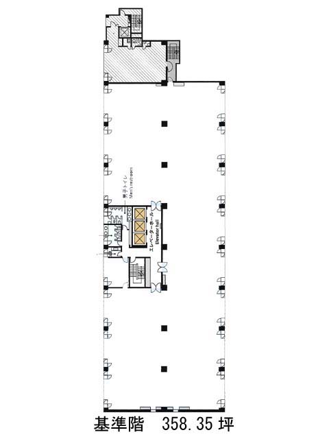
358.35坪

賃料(共益費含)


入居日

募集終了

保証金

礼金

更新料

償却費

竣工

1988年4月

構造

SRC

規模

地上9階/地下2階

トイレ

男女別

空調

個別空調

エレベーター

セキュリティ

駐車場

耐震

新耐震基準

基準階天井高

2450mm

空室延床面積

最寄駅

情報更新日

2023/03/13

TOKYU REIT 虎ノ門ビルのテナント募集中区画

現在、空室がございません。

TOKYU REIT 虎ノ門ビルのアクセス

TOKYU REIT 虎ノ門ビルの物件情報

TOKYU REIT 虎ノ門ビル(港区虎ノ門)は神谷町駅(3番出口)から徒歩3分の賃貸オフィスです。
桜田通り沿いの物件。横幅の大きな建物で周辺でも一際存在感があります。グレートーンの外観は清潔感があり、堅実な印象を受けます。エントランスホールも広々としており、腰掛けのある待合スペースは来客の際などに便利でしょう。暖色系の明かりが上品な雰囲気です。
1フロアは最大約360坪の大規模。フロアや募集時期によってフロア2分割などの区画が出る場合がございますので詳細はお問合せくださいませ。エレベーター(3基)・男女別トイレ・給湯室の共有部分は全て室外に集約しています。執務室は共有部分を囲うコの字型の間取りで、出入りの動線は複数確保されています。
ビル内では飲食店が数軒営業中。特に1階のセブンイレブンは飲食スペースが用意されており、急ぎの食事などに便利です。
TOKYU REIT 虎ノ門ビルは神谷町駅(3番出口)の他に虎ノ門ヒルズ駅(A1番出口)徒歩5分、虎ノ門駅(2a番出口)徒歩10分で利用も可能です。

近隣のエリア・駅から探す