2階は現在募集がありません
2フロア募集区画あり
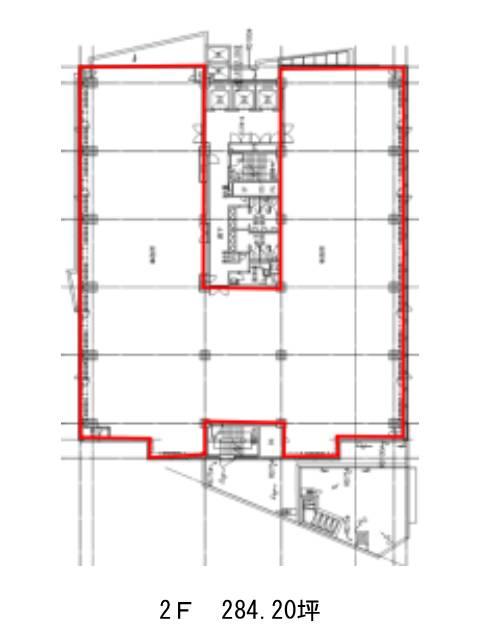
メトロシティ神谷町 2階
物件概要
物件番号
122-00059-292物件名
メトロシティ神谷町所在地
- 東京都港区虎ノ門5-1-5
- アクセスマップ
面積
284.20坪賃料(共益費含)
−入居日
募集終了保証金
−礼金
−更新料
−償却費
−竣工
1986年10月構造
RC規模
地上8階/地下2階トイレ
男女別空調
セントラルエレベーター
有セキュリティ
有駐車場
有耐震
新耐震基準基準階天井高
2550mm空室延床面積
180.96坪情報更新日
2026/02/19メトロシティ神谷町のテナント募集中区画
| 階数 | 面積 | 賃料(共益費含む) | 保証金 | 入居可能日 | 検討リスト | 詳細 |
|---|---|---|---|---|---|---|
| 7 | 53.90坪 | 応相談(応相談) | 応相談 | 2026年6月上旬 | ||
| 8 | 127.06坪 | 応相談(応相談) | 応相談 | 2026年6月上旬 |
…新着物件
メトロシティ神谷町のアクセス
メトロシティ神谷町の物件情報
メトロシティ神谷町(港区虎ノ門)は神谷町駅(4A番出口)から徒歩1分の賃貸オフィスです。貸室の間取りは、共用部分をはさんだコの字型をしています。出入口が4か所あり動線のバリエーションが増えるでしょう。設備として、貸室外の男女別トイレ・駐車場・EV3基・機械警備があります。2011年にEV・トイレ等共用部の一部がリニューアルされ清潔感があります。外観はミラーガラスに黒い壁のアクセントでシャープな印象をしています。地下鉄駅から雨に濡れずに行ける為、来客時も便利でしょう。1階に銀行が入っています。メトロシティ神谷町は神谷町駅(4A番出口)の他に虎ノ門ヒルズ駅(A1番出口)徒歩6分、御成門駅(A5番出口)徒歩9分で利用も可能です。

