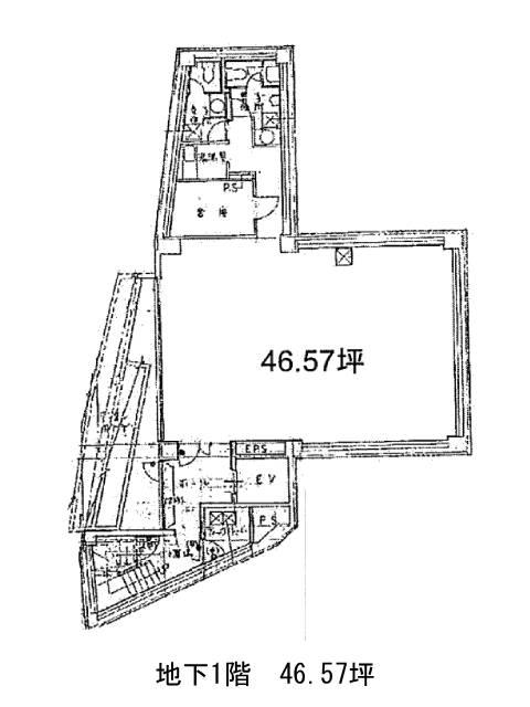
ルート高輪ビル 地下1階
物件概要
物件番号
124-00016-10物件名
ルート高輪ビル所在地
- 東京都港区高輪1-5-21
- アクセスマップ
面積
46.57坪賃料(共益費含)
月額665,951円(14,300円/坪)
入居日
2026年4月上旬保証金
3,353,040円礼金
なし更新料
新1ケ月償却費
10%竣工
1991年6月構造
RC規模
地上4階/地下1階トイレ
男女別空調
個別空調エレベーター
有セキュリティ
駐車場
有耐震
新耐震基準基準階天井高
空室延床面積
46.57坪情報更新日
2026/02/09ルート高輪ビルのテナント募集中区画
| 階数 | 面積 | 賃料(共益費含む) | 保証金 | 入居可能日 | 検討リスト | 詳細 |
|---|---|---|---|---|---|---|
| 地下1 | 46.57坪 | 665,951円/月(14,300円/坪) | 335万円 | 2026年4月上旬 |
…新着物件
ルート高輪ビルのアクセス
ルート高輪ビルの物件情報
ルート高輪ビル(港区高輪)は泉岳寺駅(A3番出口)から徒歩5分の賃貸オフィスです。ルート高輪ビルは泉岳寺駅(A3番出口)の他に白金高輪駅(2番出口)徒歩7分、高輪ゲートウェイ駅(出口)徒歩12分で利用も可能です。

