6階は現在募集がありません
2フロア募集区画あり

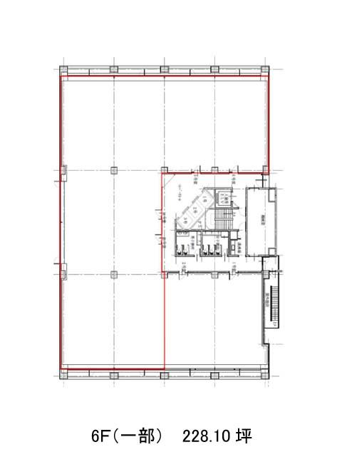
三田日東ダイビル 6階

前の写真 次の写真

物件概要

物件番号

125-00070-100

物件名

三田日東ダイビル

所在地

面積

228.10坪

賃料(共益費含)


入居日

募集終了

保証金

礼金

更新料

償却費

竣工

1986年9月

構造

SRC

規模

地上8階/地下1階

トイレ

男女別

空調

セントラル

エレベーター

セキュリティ

駐車場

耐震

新耐震基準

基準階天井高

2450mm

空室延床面積

140.60坪

最寄駅

情報更新日

2026/04/02

三田日東ダイビルのテナント募集中区画

階数 面積 賃料(共益費含む) 保証金 入居可能日 検討リスト 詳細
2 55.18坪 応相談(応相談) 応相談
2 85.42坪 応相談(応相談) 応相談 2026年7月上旬
…新着物件

三田日東ダイビルのアクセス

三田日東ダイビルの物件情報

三田日東ダイビル(港区三田)は泉岳寺駅(A4番出口)から徒歩4分の賃貸オフィスです。
1986年竣工、地上8階建て、鉄骨鉄筋コンクリート造の建物です。外観は全体的にシックな色合いで、シンプルなデザインとなっております。基準階フロアは約280坪を超える広さで、室内は余計な柱が少ないため、比較的レイアウトは組みやすいでしょう。ビル内にはOAフロアが備えられており、トイレは男女別となっております。また、耐震性は新耐震基準であるため、安心です。駐車場も完備しております。周辺にはコンビニや飲食店、郵便局などがあるため、利便性が高いです。
三田日東ダイビルは泉岳寺駅(A4番出口)の他に三田駅(A1番出口)徒歩9分、高輪ゲートウェイ駅(出口)徒歩11分で利用も可能です。

近隣のエリア・駅から探す