4階は現在募集がありません
三田日東ダイビル 4階
物件概要
三田日東ダイビルのテナント募集中区画
現在、空室がございません。
アクセス
三田日東ダイビルの物件情報
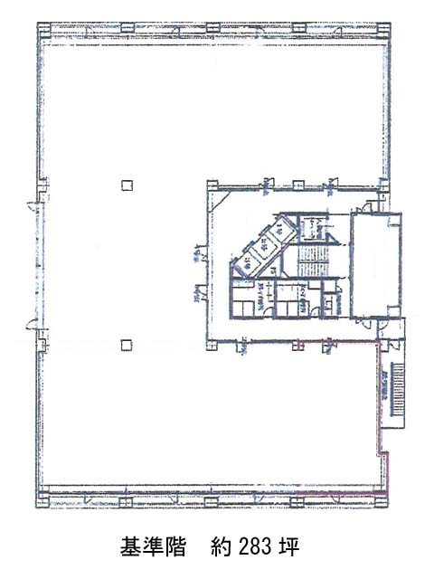
三田日東ダイビル(港区三田)は泉岳寺駅(A4番出口)から徒歩4分の賃貸オフィスです。1986年竣工、地上8階建て、鉄骨鉄筋コンクリート造の建物です。外観は全体的にシックな色合いで、シンプルなデザインとなっております。基準階フロアは約280坪を超える広さで、室内は余計な柱が少ないため、比較的レイアウトは組みやすいでしょう。ビル内にはOAフロアが備えられており、トイレは男女別となっております。また、耐震性は新耐震基準であるため、安心です。駐車場も完備しております。周辺にはコンビニや飲食店、郵便局などがあるため、利便性が高いです。三田日東ダイビルは泉岳寺駅(A4番出口)の他に三田駅(A1番出口)徒歩9分、高輪ゲートウェイ駅(出口)徒歩11分で利用も可能です。

