7階は現在募集がありません
2フロア募集区画あり

高浦ビル 7階

前の写真 次の写真

物件概要

物件番号

126-00159-70

物件名

高浦ビル

所在地

面積

41.64坪

賃料(共益費含)


入居日

募集終了

保証金

礼金

更新料

償却費

竣工

1987年2月

構造

RC

規模

地上9階

トイレ

男女別

空調

個別空調

エレベーター

セキュリティ

駐車場

耐震

新耐震基準

基準階天井高

空室延床面積

83.28坪

最寄駅

情報更新日

2026/03/02

高浦ビルのテナント募集中区画

階数 面積 賃料(共益費含む) 保証金 入居可能日 検討リスト 詳細
2 41.64坪 618,354円/月(14,850円/坪) 274万円 2026年6月上旬
8 41.64坪 618,354円/月(14,850円/坪) 274万円 2026年6月上旬
…新着物件

高浦ビルのアクセス

高浦ビルの物件情報

高浦ビル(港区芝)は三田駅(A9番出口)から徒歩6分の賃貸オフィスです。
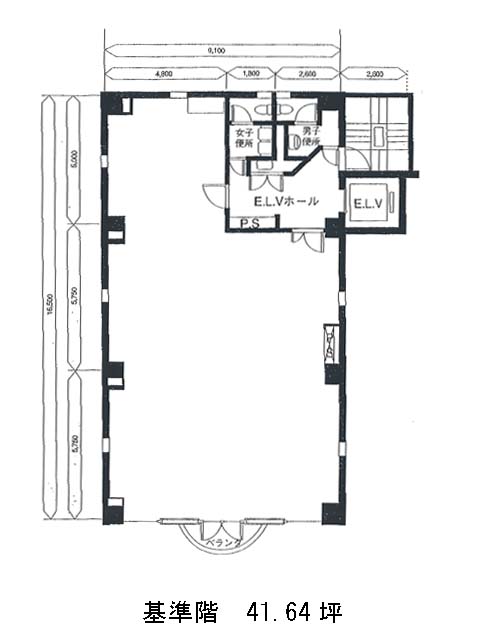
低層階がブラウン、高層階が水色の外壁で特徴的な外観をしています。1987年竣工、新耐震基準適合の地上9階建ビルです。EV・執務室外の男女別トイレがあり空調は個別空調システムを導入しています。間取りは支柱が中央に無い長方形で、半円状のバルコニーがリフレッシュスペースとなるでしょう。床下に配線を格納できるOAフロアとなっています。周辺はオフィスやホテルが建ち、徒歩圏内にはレストランやコンビニが多くランチにご利用頂けるでしょう。
高浦ビルは三田駅(A9番出口)の他に芝公園駅(A1番出口)徒歩7分、日の出駅(東口)徒歩10分で利用も可能です。

近隣のエリア・駅から探す