高浦ビル 8階
物件概要
物件番号
126-00159-80物件名
高浦ビル所在地
- 東京都港区芝2-29-11
- アクセスマップ
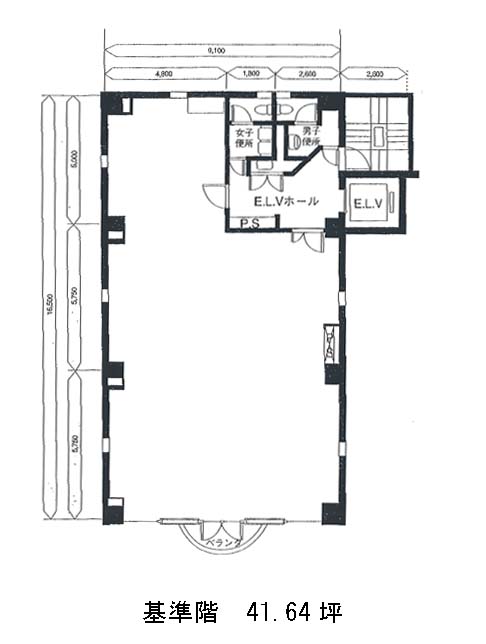
面積
41.64坪賃料(共益費含)
月額618,354円(14,850円/坪)
入居日
2026年6月上旬保証金
2,748,240円礼金
1ケ月更新料
なし償却費
なし竣工
1987年2月構造
RC規模
地上9階トイレ
男女別空調
個別空調エレベーター
有セキュリティ
有駐車場
無耐震
新耐震基準基準階天井高
空室延床面積
83.28坪情報更新日
2026/03/02高浦ビルのテナント募集中区画
| 階数 | 面積 | 賃料(共益費含む) | 保証金 | 入居可能日 | 検討リスト | 詳細 |
|---|---|---|---|---|---|---|
| 2 | 41.64坪 | 618,354円/月(14,850円/坪) | 274万円 | 2026年6月上旬 | ||
| 8 | 41.64坪 | 618,354円/月(14,850円/坪) | 274万円 | 2026年6月上旬 |
…新着物件
高浦ビルのアクセス
高浦ビルの物件情報
高浦ビル(港区芝)は三田駅(A9番出口)から徒歩6分の賃貸オフィスです。低層階がブラウン、高層階が水色の外壁で特徴的な外観をしています。1987年竣工、新耐震基準適合の地上9階建ビルです。EV・執務室外の男女別トイレがあり空調は個別空調システムを導入しています。間取りは支柱が中央に無い長方形で、半円状のバルコニーがリフレッシュスペースとなるでしょう。床下に配線を格納できるOAフロアとなっています。周辺はオフィスやホテルが建ち、徒歩圏内にはレストランやコンビニが多くランチにご利用頂けるでしょう。高浦ビルは三田駅(A9番出口)の他に芝公園駅(A1番出口)徒歩7分、日の出駅(東口)徒歩10分で利用も可能です。

