芝尾島ビル 2階
物件概要
物件番号
126-00288-20物件名
芝尾島ビル所在地
- 東京都港区芝2-27-13
- アクセスマップ
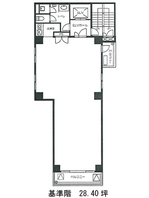
面積
28.40坪賃料(共益費含)
月額468,600円(16,500円/坪)
入居日
即保証金
2,044,800円礼金
1ケ月更新料
新1ケ月償却費
2ケ月竣工
1990年7月構造
SRC規模
地上7階トイレ
男女共用空調
個別空調エレベーター
有セキュリティ
駐車場
無耐震
新耐震基準基準階天井高
空室延床面積
28.40坪情報更新日
2026/02/24芝尾島ビルのテナント募集中区画
| 階数 | 面積 | 賃料(共益費含む) | 保証金 | 入居可能日 | 検討リスト | 詳細 |
|---|---|---|---|---|---|---|
| 2 | 28.40坪 | 468,600円/月(16,500円/坪) | 204万円 | 即 |
…新着物件
芝尾島ビルのアクセス
芝尾島ビルの物件情報
芝尾島ビル(港区芝)は芝公園駅(A1番出口)から徒歩6分の賃貸オフィスです。芝尾島ビルは芝公園駅(A1番出口)の他に三田駅(A9番出口)徒歩7分、大門駅(A3番出口)徒歩11分で利用も可能です。

