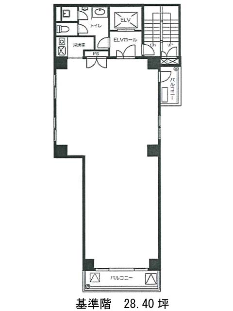
芝尾島ビルのテナント募集中区画
| 階数 | 面積 | 賃料(共益費含む) | 保証金 | 入居可能日 | 検討リスト | 詳細 |
|---|---|---|---|---|---|---|
| 2 | 28.40坪 | 468,600円/月(16,500円/坪) | 204万円 | 即 |
…新着物件
アクセス
芝尾島ビルの物件情報
芝尾島ビル(港区芝)は芝公園駅(A1番出口)から徒歩6分の賃貸オフィスです。芝尾島ビルは芝公園駅(A1番出口)の他に三田駅(A9番出口)徒歩7分、大門駅(A3番出口)徒歩11分で利用も可能です。

