ニットクビル 3階 南新着
物件概要
物件番号
126-00034-96物件名
ニットクビル所在地
- 東京都港区芝3-3-14
- アクセスマップ
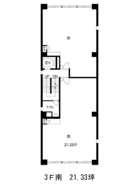
面積
21.33坪賃料(共益費含)
月額328,482円(15,400円/坪)
入居日
2026年8月保証金
2,090,340円礼金
なし更新料
なし償却費
1ケ月竣工
1972年5月構造
SRC規模
地上7階/地下1階トイレ
男女別空調
個別空調エレベーター
有セキュリティ
駐車場
無耐震
旧耐震基準基準階天井高
空室延床面積
21.33坪情報更新日
2026/04/10ニットクビルのテナント募集中区画
| 階数 | 面積 | 賃料(共益費含む) | 保証金 | 入居可能日 | 検討リスト | 詳細 |
|---|---|---|---|---|---|---|
| 3 | 21.33坪 | 328,482円/月(15,400円/坪) | 209万円 | 2026年8月 |
…新着物件
ニットクビルのアクセス
ニットクビルの物件情報
ニットクビル(港区芝)は芝公園駅(A2番出口)から徒歩3分の賃貸オフィスです。1972年竣工と少し古いですが、2013年にはリニューアル工事を実施しており、外観は全体的にグレーを基調とした色合いで、モダンな印象があります。エントランスホールやエレベーターホールは清潔感があり、落ち着いた空間となっております。基準階は約40坪、貸室内はほぼ長方形の形をしているため、比較的レイアウトは組みやすいでしょう。トイレは隔階男女別トイレです。周辺にはコンビニや飲食店、郵便局などが複数あるため、利便性が高いです。近くには緑豊かで大きな公園があるので、リラックスしたい時などに活用できそうです。ニットクビルは芝公園駅(A2番出口)の他に赤羽橋駅(赤羽橋口)徒歩5分、三田駅(A10番出口)徒歩8分で利用も可能です。

