平和会館ビル 3階
物件概要
物件番号
126-00377-20物件名
平和会館ビル所在地
- 東京都港区芝1-4-9
- アクセスマップ
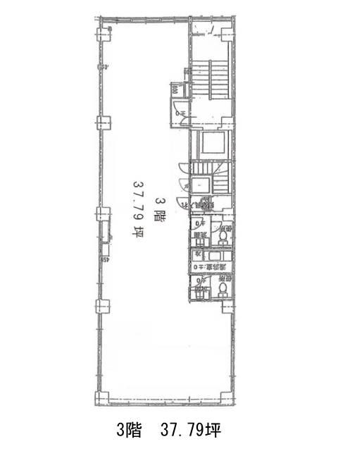
面積
37.79坪賃料(共益費含)
月額623,535円(16,500円/坪)
入居日
即保証金
3,627,840円礼金
なし更新料
新1ケ月償却費
1ケ月竣工
1964年3月構造
SRC規模
地上7階/地下1階トイレ
男女別空調
個別空調エレベーター
有セキュリティ
有駐車場
無耐震
旧耐震基準基準階天井高
空室延床面積
37.79坪情報更新日
2026/04/07平和会館ビルのテナント募集中区画
| 階数 | 面積 | 賃料(共益費含む) | 保証金 | 入居可能日 | 検討リスト | 詳細 |
|---|---|---|---|---|---|---|
| 3 | 37.79坪 | 623,535円/月(16,500円/坪) | 362万円 | 即 |
…新着物件
平和会館ビルのアクセス
平和会館ビルの物件情報
平和会館ビル(港区芝)は大門駅(A3番出口)から徒歩7分の賃貸オフィスです。平和会館ビルは大門駅(A3番出口)の他に浜松町駅(南口1)徒歩7分、芝公園駅(A1番出口)徒歩7分で利用も可能です。

