8階は現在募集がありません
2フロア募集区画あり

芝石井ビル 8階

前の写真 次の写真

物件概要

物件番号

126-00056-60

物件名

芝石井ビル

所在地

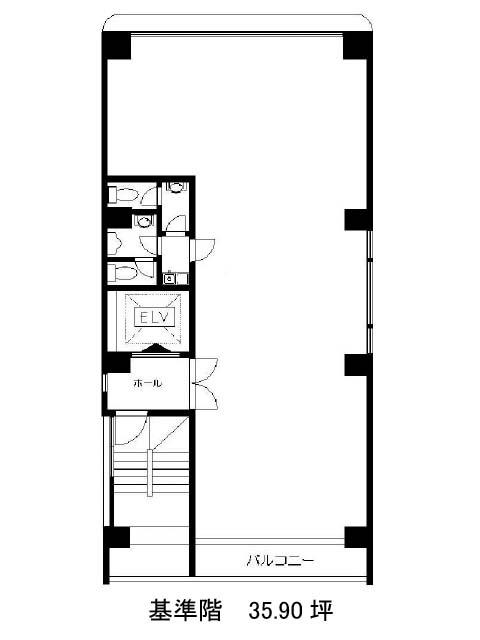
面積

35.90坪

賃料(共益費含)


入居日

募集終了

保証金

礼金

更新料

償却費

竣工

1986年10月

構造

SRC

規模

地上10階

トイレ

男女別

空調

個別空調

エレベーター

セキュリティ

駐車場

耐震

新耐震基準

基準階天井高

2500mm

空室延床面積

71.80坪

最寄駅

情報更新日

2026/04/21

芝石井ビルのテナント募集中区画

階数 面積 賃料(共益費含む) 保証金 入居可能日 検討リスト 詳細
3 35.90坪 552,860円/月(15,400円/坪) 402万円
7 35.90坪 552,860円/月(15,400円/坪) 402万円
…新着物件

芝石井ビルのアクセス

芝石井ビルの物件情報

芝石井ビル(港区芝)は三田駅(A9番出口)から徒歩5分の賃貸オフィスです。
芝石井ビルは三田駅(A9番出口)の他に田町駅(三田口)徒歩8分、芝公園駅(A1番出口)徒歩9分で利用も可能です。

近隣のエリア・駅から探す