8階は現在募集がありません
2フロア募集区画あり

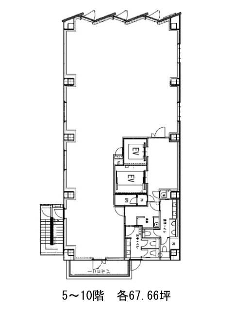
MAビル三田 8階

前の写真 次の写真

物件概要

物件番号

126-00564-2

物件名

MAビル三田

所在地

面積

67.66坪

賃料(共益費含)


入居日

募集終了

保証金

礼金

更新料

償却費

竣工

2023年11月

構造

S造

規模

地上10階

トイレ

男女別

空調

個別空調

エレベーター

セキュリティ

駐車場

耐震

新耐震基準

基準階天井高

2600mm

空室延床面積

135.32坪

最寄駅

情報更新日

2026/04/21

MAビル三田のテナント募集中区画

階数 面積 賃料(共益費含む) 保証金 入居可能日 検討リスト 詳細
4 67.66坪 2,009,502円/月(29,700円/坪) 1,461万円
7 67.66坪 2,083,928円/月(30,800円/坪) 1,136万円
…新着物件

MAビル三田のアクセス

MAビル三田の物件情報

MAビル三田(港区芝)は三田駅(A3番出口)から徒歩5分の賃貸オフィスです。
2023年9月竣工、地上10階建の新築ビルです。ミラーガラスを斜めに配置したスタイリッシュな外観をしています。60坪台の貸室が多く、中規模な事務所をお探しの方によいでしょう。EV・貸室外の男女別トイレ・給湯室・OAフロア・個別空調・機械警備と充実の設備仕様です。室内は支柱が中央に無く、オフィス家具のレイアウトがしやすいでしょう。入居者専用の屋上庭園があり、リフレッシュスペースとしてご利用頂けます。
MAビル三田は三田駅(A3番出口)の他に田町駅(三田口)徒歩6分、赤羽橋駅(赤羽橋口)徒歩10分で利用も可能です。

近隣のエリア・駅から探す