MAビル三田のテナント募集中区画
| 階数 | 面積 | 賃料(共益費含む) | 保証金 | 入居可能日 | 検討リスト | 詳細 |
|---|---|---|---|---|---|---|
| 4 | 67.66坪 | 2,083,928円/月(30,800円/坪) | 1,515万円 | 即 | ||
| 7 | 67.66坪 | 2,158,354円/月(31,900円/坪) | 1,177万円 | 即 |
…新着物件
アクセス
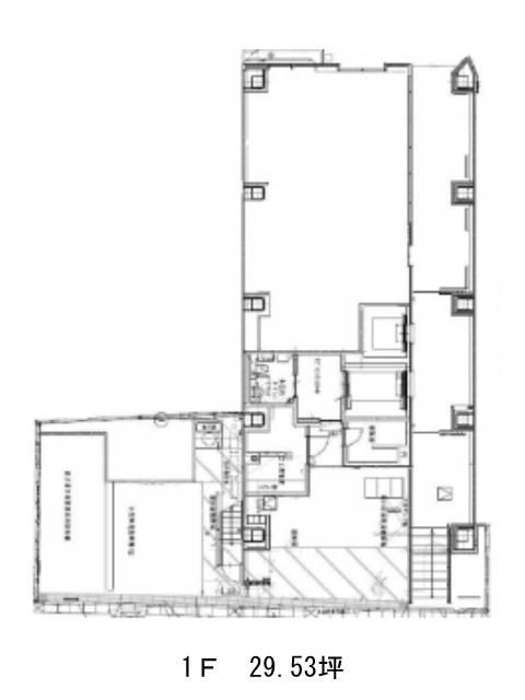
MAビル三田の物件情報
MAビル三田(港区芝)は三田駅(A3番出口)から徒歩5分の賃貸オフィスです。2023年9月竣工、地上10階建の新築ビルです。ミラーガラスを斜めに配置したスタイリッシュな外観をしています。60坪台の貸室が多く、中規模な事務所をお探しの方によいでしょう。EV・貸室外の男女別トイレ・給湯室・OAフロア・個別空調・機械警備と充実の設備仕様です。室内は支柱が中央に無く、オフィス家具のレイアウトがしやすいでしょう。入居者専用の屋上庭園があり、リフレッシュスペースとしてご利用頂けます。MAビル三田は三田駅(A3番出口)の他に田町駅(三田口)徒歩6分、赤羽橋駅(赤羽橋口)徒歩10分で利用も可能です。

