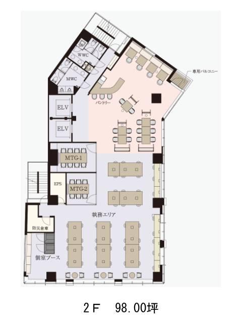
スイテ田町 2階

前の写真 次の写真

物件概要

物件番号

126-00600-1

物件名

スイテ田町

所在地

面積

98.00坪

賃料(共益費含)

:応相談
応相談

入居日

2027年4月

保証金

応相談

礼金

なし

更新料

なし

償却費

なし

竣工

2027年

構造

S造

規模

地上13階

トイレ

男女別

空調

個別空調

エレベーター

セキュリティ

駐車場

耐震

新耐震基準

基準階天井高

空室延床面積

1165.00坪

最寄駅

情報更新日

2026/05/19

スイテ田町のテナント募集中区画

階数 面積 賃料(共益費含む) 保証金 入居可能日 検討リスト 詳細
2 98.00坪 応相談(応相談) 応相談 2027年4月
3 97.00坪 応相談(応相談) 応相談 2027年4月
4 97.00坪 応相談(応相談) 応相談 2027年4月
5 97.00坪 応相談(応相談) 応相談 2027年4月
6 97.00坪 応相談(応相談) 応相談 2027年4月
7 97.00坪 応相談(応相談) 応相談 2027年4月
8 97.00坪 応相談(応相談) 応相談 2027年4月
9 97.00坪 応相談(応相談) 応相談 2027年4月
10 97.00坪 応相談(応相談) 応相談 2027年4月
11 97.00坪 応相談(応相談) 応相談 2027年4月
12 97.00坪 応相談(応相談) 応相談 2027年4月
13 97.00坪 応相談(応相談) 応相談 2027年4月
…新着物件

スイテ田町のアクセス

スイテ田町の物件情報

スイテ田町(港区芝)は三田駅(A3番出口)から徒歩2分の賃貸オフィスです。
スイテ田町は三田駅(A3番出口)の他に田町駅(三田口)徒歩4分、芝公園駅(A1番出口)徒歩11分で利用も可能です。

近隣のエリア・駅から探す