SUN TORAビル 2階
物件概要
物件番号
126-00072-20物件名
SUN TORAビル所在地
- 東京都港区芝3-24-3
- アクセスマップ
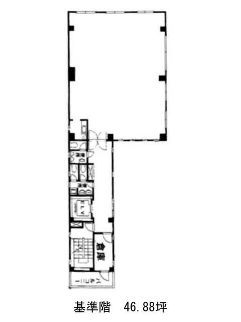
面積
46.88坪賃料(共益費含)
月額670,384円(14,300円/坪)
入居日
即保証金
4,500,000円礼金
なし更新料
新1ケ月償却費
なし竣工
1990年12月構造
S造規模
地上5階トイレ
男女別空調
個別空調エレベーター
有セキュリティ
有駐車場
無耐震
新耐震基準基準階天井高
空室延床面積
46.88坪情報更新日
2026/02/18SUN TORAビルのテナント募集中区画
| 階数 | 面積 | 賃料(共益費含む) | 保証金 | 入居可能日 | 検討リスト | 詳細 |
|---|---|---|---|---|---|---|
| 2 | 46.88坪 | 670,384円/月(14,300円/坪) | 450万円 | 即 |
…新着物件
SUN TORAビルのアクセス
SUN TORAビルの物件情報
SUN TORAビル(港区芝)は芝公園駅(A1番出口)から徒歩3分の賃貸オフィスです。港区芝3丁目、落ち着いた住宅・オフィス混在エリアに立地する、地上5階建てのコンパクトオフィスビルです。黄緑色のパネルがアクセントになった外観は、小ぶりながらも視認性があり、初めて訪れる来客の目印としても機能します。
基準階は約46坪で、少人数での利用やスタートアップ、分室利用などに適したサイズ感。室内にはOAフロアを完備しており、配線処理もしやすく、効率的なレイアウトが可能です。エレベーター、男女別トイレ、倉庫スペースを備えた共用部に加え、機械警備によるセキュリティ対応もされています。
必要な機能を無駄なく備えた、シンプルかつ実用的なオフィス空間です。SUN TORAビルは芝公園駅(A1番出口)の他に三田駅(A10番出口)徒歩6分、赤羽橋駅(赤羽橋口)徒歩8分で利用も可能です。

