7階は現在募集がありません
1フロア募集区画あり

芝公園電気ビルディング 7階

前の写真 次の写真

物件概要

物件番号

128-00023-110

物件名

芝公園電気ビルディング

所在地

面積

28.23坪

賃料(共益費含)


入居日

募集終了

保証金

礼金

更新料

償却費

竣工

1988年6月

構造

SRC

規模

地上10階/地下2階

トイレ

男女別

空調

セントラル

エレベーター

セキュリティ

駐車場

耐震

新耐震基準

基準階天井高

2650mm

空室延床面積

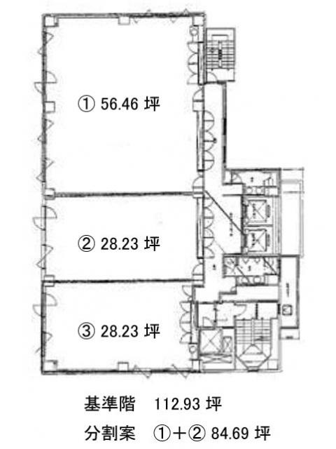
56.46坪

最寄駅

情報更新日

2026/04/20

芝公園電気ビルディングのテナント募集中区画

階数 面積 賃料(共益費含む) 保証金 入居可能日 検討リスト 詳細
3 56.46坪 応相談(応相談) 応相談 2026年8月上旬
…新着物件

芝公園電気ビルディングのアクセス

芝公園電気ビルディングの物件情報

芝公園電気ビルディング(港区芝公園)は御成門駅(A3b番出口)から徒歩2分の賃貸オフィスです。
御成門駅すぐの物件。外観はブラウンの石造りで落ち着いた印象です。エントランス回りに植栽が施されており、上品な雰囲気が漂っています。エントランス・エレベーターホールは赤い絨毯や吊り下げ式の照明が印象的。
1フロアは最大約110坪の規模ですが、三分割仕様(60坪弱の貸室×1、30坪弱の貸室×2)のフロアも複数ございます。エレベーターは2基設置済みでスムーズな昇降が可能でしょう。男女別トイレと給湯室は全て室外に設置されています。また当ビルは駐車場を併設しています。
芝公園電気ビルディングは御成門駅(A3b番出口)の他に大門駅(A6番出口)徒歩7分、芝公園駅(A3番出口)徒歩9分で利用も可能です。

近隣のエリア・駅から探す