喜多ビル/KITA BLD. 7階 701
物件概要
物件番号
129-00010-110物件名
喜多ビル/KITA BLD.所在地
- 東京都港区芝大門1-3-6
- アクセスマップ
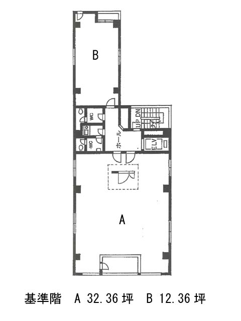
面積
32.36坪賃料(共益費含)
月額572,028円(17,677円/坪)
入居日
即保証金
2,550,097円礼金
なし更新料
新1ケ月償却費
1ケ月竣工
1984年6月構造
SRC規模
地上9階トイレ
男女別空調
個別空調エレベーター
有セキュリティ
駐車場
無耐震
新耐震基準基準階天井高
空室延床面積
64.72坪情報更新日
2026/02/18喜多ビル/KITA BLD.のテナント募集中区画
| 階数 | 面積 | 賃料(共益費含む) | 保証金 | 入居可能日 | 検討リスト | 詳細 |
|---|---|---|---|---|---|---|
| 3 | 32.36坪 | 572,000円/月(17,677円/坪) | 171万円 | 相談 | ||
| 7 | 32.36坪 | 572,028円/月(17,677円/坪) | 255万円 | 即 |
…新着物件
喜多ビル/KITA BLD.のアクセス
喜多ビル/KITA BLD.の物件情報
喜多ビル/KITA BLD.(港区芝大門)は大門駅(A4番出口)から徒歩4分の賃貸オフィスです。喜多ビル/KITA BLD.は大門駅(A4番出口)の他に御成門駅(A3a番出口)徒歩6分、浜松町駅(北口)徒歩8分で利用も可能です。

