喜多ビル/KITA BLD.のテナント募集中区画
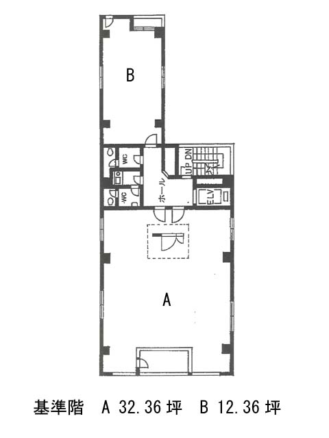
| 階数 | 面積 | 賃料(共益費含む) | 保証金 | 入居可能日 | 検討リスト | 詳細 |
|---|---|---|---|---|---|---|
| 3 | 32.36坪 | 572,000円/月(17,677円/坪) | 171万円 | 相談 | ||
| 7 | 32.36坪 | 572,028円/月(17,677円/坪) | 255万円 | 即 |
…新着物件
喜多ビル/KITA BLD.のアクセス
喜多ビル/KITA BLD.の物件情報
喜多ビル/KITA BLD.(港区芝大門)は大門駅(A4番出口)から徒歩4分の賃貸オフィスです。喜多ビル/KITA BLD.は大門駅(A4番出口)の他に御成門駅(A3a番出口)徒歩6分、浜松町駅(北口)徒歩8分で利用も可能です。

