6階 601は現在募集がありません
2フロア募集区画あり

喜多ビル/KITA BLD. 6階 601

前の写真 次の写真

物件概要

物件番号

129-00010-90

物件名

喜多ビル/KITA BLD.

所在地

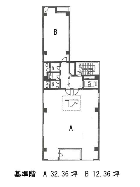
面積

32.36坪

賃料(共益費含)


入居日

募集終了

保証金

礼金

更新料

償却費

竣工

1984年6月

構造

SRC

規模

地上9階

トイレ

男女別

空調

個別空調

エレベーター

セキュリティ

駐車場

耐震

新耐震基準

基準階天井高

空室延床面積

64.72坪

最寄駅

情報更新日

2026/03/13

喜多ビル/KITA BLD.のテナント募集中区画

階数 面積 賃料(共益費含む) 保証金 入居可能日 検討リスト 詳細
3 32.36坪 572,000円/月(17,677円/坪) 171万円 相談
7 32.36坪 572,028円/月(17,677円/坪) 171万円
…新着物件

喜多ビル/KITA BLD.のアクセス

喜多ビル/KITA BLD.の物件情報

喜多ビル/KITA BLD.(港区芝大門)は大門駅(A4番出口)から徒歩4分の賃貸オフィスです。
喜多ビル/KITA BLD.は大門駅(A4番出口)の他に御成門駅(A3a番出口)徒歩6分、浜松町駅(北口)徒歩8分で利用も可能です。

近隣のエリア・駅から探す