グランファースト芝大門 7階
物件概要
物件番号
129-00107-25物件名
グランファースト芝大門所在地
- 東京都港区芝大門1-3-4
- アクセスマップ
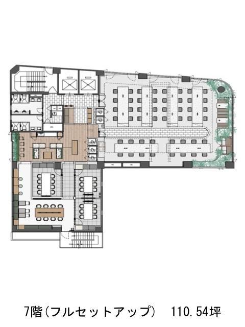
面積
110.54坪賃料(共益費含)
月額3,769,414円(34,100円/坪)
入居日
2026年3月上旬保証金
20,560,440円礼金
なし更新料
なし償却費
なし竣工
1988年10月構造
SRC規模
地上9階トイレ
男女別空調
個別空調エレベーター
有セキュリティ
有駐車場
有耐震
新耐震基準基準階天井高
2400mm空室延床面積
552.70坪情報更新日
2026/02/18グランファースト芝大門のテナント募集中区画
…新着物件
グランファースト芝大門のアクセス
グランファースト芝大門の物件情報
グランファースト芝大門(港区芝大門)は大門駅(A4番出口)から徒歩5分の賃貸オフィスです。外観は茶系とグレーの2色に分かれている特徴的なデザインとなっております。エントランスホールやエレベーターホールはとても清潔感があり、落ち着いた空間となっております。また周辺にはコンビニや飲食店、郵便局などがあるためとても利便性が高いです。ビル内にはOAフロアが備えられており、個別空調完備、トイレ男女別となっているため設備面も充実しております。駐車場も完備してあるため、社用車を利用する場合に便利でしょう。グランファースト芝大門は大門駅(A4番出口)の他に御成門駅(A3a番出口)徒歩5分、浜松町駅(北口)徒歩8分で利用も可能です。

