サクセス芝大門ビル 9階
物件概要
物件番号
129-00150-90物件名
サクセス芝大門ビル所在地
- 東京都港区芝大門2-8-13
- アクセスマップ
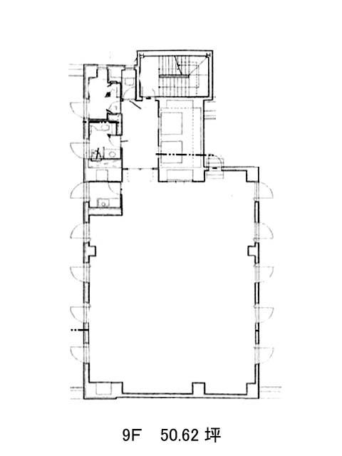
面積
50.62坪賃料(共益費含)
:応相談応相談
入居日
2026年1月下旬保証金
応相談礼金
なし更新料
なし償却費
なし竣工
2001年8月構造
SRC規模
地上9階トイレ
男女別空調
個別空調エレベーター
有セキュリティ
駐車場
有耐震
新耐震基準基準階天井高
2600mm空室延床面積
50.62坪情報更新日
2026/01/09サクセス芝大門ビルのテナント募集中区画
| 階数 | 面積 | 賃料(共益費含む) | 保証金 | 入居可能日 | 検討リスト | 詳細 |
|---|---|---|---|---|---|---|
| 9 | 50.62坪 | 応相談(応相談) | 応相談 | 2026年1月下旬 |
…新着物件
アクセス
サクセス芝大門ビルの物件情報
サクセス芝大門ビル(港区芝大門)は大門駅(A6番出口)から徒歩3分の賃貸オフィスです。2001年竣工、SRC造地上9階建のビルです。基壇部は明るいブラウンの壁面、上層部はグレーの壁面で優しい色合いの外観をしています。EV1基・駐車場・個別空調・OAフロア・貸室外の男女別トイレといった設備仕様をしています。天井高2600㎜、二面採光で明るい室内となるでしょう。周辺は中層階の分譲マンションやオフィスビルが並ぶエリアとなります。徒歩圏内に飲食店やコンビニがあり、ランチにご利用頂けるでしょう。サクセス芝大門ビルは大門駅(A6番出口)の他に芝公園駅(A3番出口)徒歩5分、浜松町駅(南口1)徒歩7分で利用も可能です。

