玉家ビル 5階
物件概要
物件番号
129-00156-41物件名
玉家ビル所在地
- 東京都港区芝大門1-3-17
- アクセスマップ
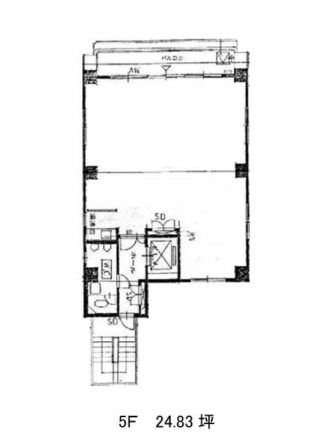
面積
24.83坪賃料(共益費含)
月額396,038円(15,950円/坪)
入居日
相談保証金
2,160,210円礼金
なし更新料
新1ケ月償却費
1ケ月竣工
1990年1月構造
RC規模
地上6階トイレ
男女共用空調
個別空調エレベーター
有セキュリティ
有駐車場
無耐震
新耐震基準基準階天井高
2360mm空室延床面積
45.07坪情報更新日
2026/02/25玉家ビルのテナント募集中区画
| 階数 | 面積 | 賃料(共益費含む) | 保証金 | 入居可能日 | 検討リスト | 詳細 |
|---|---|---|---|---|---|---|
| 5 | 24.83坪 | 396,038円/月(15,950円/坪) | 216万円 | 相談 | ||
| 6 | 20.24坪 | 322,828円/月(15,950円/坪) | 176万円 | 相談 |
…新着物件
玉家ビルのアクセス
玉家ビルの物件情報
玉家ビル(港区芝大門)は大門駅(A5番出口)から徒歩4分の賃貸オフィスです。玉家ビルは大門駅(A5番出口)の他に御成門駅(A3a番出口)徒歩6分、浜松町駅(北口)徒歩8分で利用も可能です。

