2階は現在募集がありません
1フロア募集区画あり

第2神明ビル 2階

前の写真 次の写真

物件概要

物件番号

129-00173-10

物件名

第2神明ビル

所在地

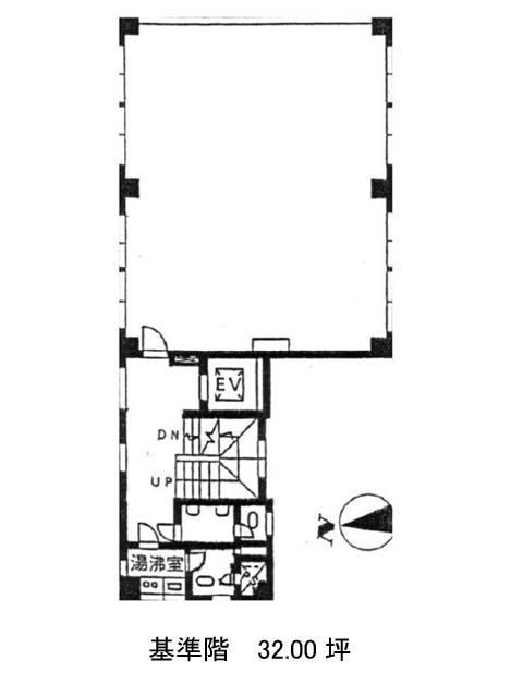
面積

32.00坪

賃料(共益費含)


入居日

募集終了

保証金

礼金

更新料

償却費

竣工

1971年5月

構造

SRC

規模

地上7階

トイレ

男女別

空調

個別空調

エレベーター

セキュリティ

駐車場

耐震

旧耐震基準

基準階天井高

空室延床面積

32.00坪

最寄駅

情報更新日

2026/01/26

第2神明ビルのテナント募集中区画

階数 面積 賃料(共益費含む) 保証金 入居可能日 検討リスト 詳細
4 32.00坪 387,200円/月(12,100円/坪) 211万円
…新着物件

第2神明ビルのアクセス

第2神明ビルの物件情報

第2神明ビル(港区芝大門)は芝公園駅(A3番出口)から徒歩4分の賃貸オフィスです。
第2神明ビルは芝公園駅(A3番出口)の他に大門駅(A6番出口)徒歩5分、浜松町駅(南口1)徒歩7分で利用も可能です。

近隣のエリア・駅から探す