第2神明ビル 4階
物件概要
物件番号
129-00173-22物件名
第2神明ビル所在地
- 東京都港区芝大門2-9-15
- アクセスマップ
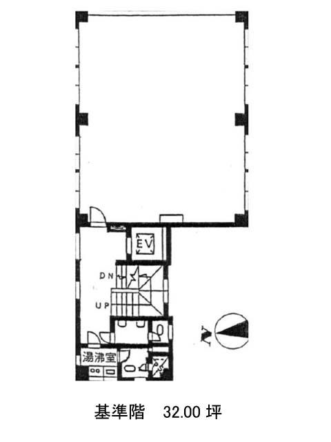
面積
32.00坪賃料(共益費含)
月額387,200円(12,100円/坪)
入居日
即保証金
2,112,000円礼金
なし更新料
新1ケ月償却費
2ケ月竣工
1971年5月構造
SRC規模
地上7階トイレ
男女別空調
個別空調エレベーター
有セキュリティ
有駐車場
有耐震
旧耐震基準基準階天井高
空室延床面積
32.00坪情報更新日
2026/01/26第2神明ビルのテナント募集中区画
| 階数 | 面積 | 賃料(共益費含む) | 保証金 | 入居可能日 | 検討リスト | 詳細 |
|---|---|---|---|---|---|---|
| 4 | 32.00坪 | 387,200円/月(12,100円/坪) | 211万円 | 即 |
…新着物件
第2神明ビルのアクセス
第2神明ビルの物件情報
第2神明ビル(港区芝大門)は芝公園駅(A3番出口)から徒歩4分の賃貸オフィスです。第2神明ビルは芝公園駅(A3番出口)の他に大門駅(A6番出口)徒歩5分、浜松町駅(南口1)徒歩7分で利用も可能です。

