第2神明ビルのテナント募集中区画
| 階数 | 面積 | 賃料(共益費含む) | 保証金 | 入居可能日 | 検討リスト | 詳細 |
|---|---|---|---|---|---|---|
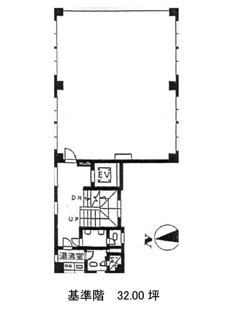
| 4 | 32.00坪 | 387,200円/月(12,100円/坪) | 211万円 | 即 |
…新着物件
アクセス
第2神明ビルの物件情報
第2神明ビル(港区芝大門)は芝公園駅(A3番出口)から徒歩4分の賃貸オフィスです。第2神明ビルは芝公園駅(A3番出口)の他に大門駅(A6番出口)徒歩5分、浜松町駅(南口1)徒歩7分で利用も可能です。

