4階は現在募集がありません
第2境野ビル 4階
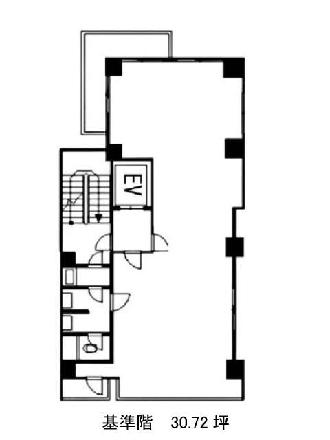
物件概要
第2境野ビルのテナント募集中区画
現在、空室がございません。
アクセス
第2境野ビルの物件情報
第二境野ビル(港区芝大門)は大門駅(A6番出口)から徒歩1分の賃貸オフィスです。第二境野ビルは大門駅(A6番出口)の他に浜松町駅(北口)徒歩5分、御成門駅(A2番出口)徒歩6分で利用も可能です。

