第2境野ビル 8階
物件概要
物件番号
129-00006-50物件名
第2境野ビル所在地
- 東京都港区芝大門2-1-1
- アクセスマップ
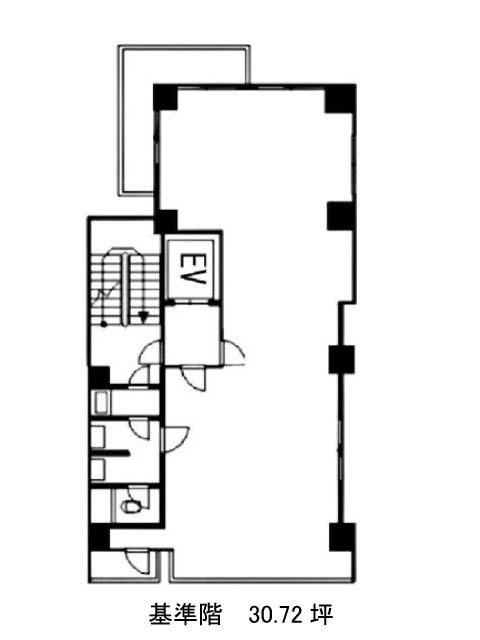
面積
30.72坪賃料(共益費含)
月額371,712円(12,100円/坪)
入居日
相談保証金
2,027,520円礼金
1ケ月更新料
新1ケ月償却費
1ケ月竣工
1977年6月構造
RC規模
地上9階トイレ
男女共用空調
個別空調エレベーター
有セキュリティ
有駐車場
無耐震
旧耐震基準基準階天井高
2500mm空室延床面積
30.72坪情報更新日
2026/01/19第2境野ビルのテナント募集中区画
| 階数 | 面積 | 賃料(共益費含む) | 保証金 | 入居可能日 | 検討リスト | 詳細 |
|---|---|---|---|---|---|---|
| 8 | 30.72坪 | 371,712円/月(12,100円/坪) | 202万円 | 相談 |
…新着物件
第2境野ビルのアクセス
第2境野ビルの物件情報
第2境野ビル(港区芝大門)は大門駅(A6番出口)から徒歩1分の賃貸オフィスです。第2境野ビルは大門駅(A6番出口)の他に浜松町駅(北口)徒歩5分、御成門駅(A2番出口)徒歩6分で利用も可能です。

