コスモタワービル 3階新着
物件概要
物件番号
129-00085-30物件名
コスモタワービル所在地
- 東京都港区芝大門1-3-10
- アクセスマップ
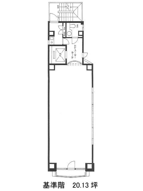
面積
20.13坪賃料(共益費含)
月額341,016円(16,941円/坪)
入居日
2026年8月上旬保証金
2,500,146円礼金
なし更新料
新1ケ月償却費
1ケ月竣工
1991年9月構造
RC規模
地上10階/地下1階トイレ
男女共用空調
個別空調エレベーター
有セキュリティ
有駐車場
無耐震
新耐震基準基準階天井高
2500mm空室延床面積
20.13坪情報更新日
2026/04/13コスモタワービルのテナント募集中区画
| 階数 | 面積 | 賃料(共益費含む) | 保証金 | 入居可能日 | 検討リスト | 詳細 |
|---|---|---|---|---|---|---|
| 3 | 20.13坪 | 341,016円/月(16,941円/坪) | 250万円 | 2026年8月上旬 |
…新着物件
コスモタワービルのアクセス
コスモタワービルの物件情報
コスモタワービル(港区芝大門)は大門駅(A4番出口)から徒歩4分の賃貸オフィスです。ビル外観は細身の造りに合ったスタイリッシュなデザイン。第一京浜に面しています。周辺は飲食店やコンビニが点在している環境です。大門駅方面に足を伸ばすとより店舗が充実していますよ。
当ビルの基準となるフロアは約20坪。コンパクトなオフィスビルですが、エレベーターホールがきちんと設けられており、トイレと給湯設備もホール側に設置されているため、執務空間との区別がしっかと確保されています。執務室は長方形の無柱空間でレイアウト効率は高いでしょう。機械警備を導入しており、セキュリティ面もご安心頂けるかと思います。コスモタワービルは大門駅(A4番出口)の他に御成門駅(A2番出口)徒歩6分、浜松町駅(北口)徒歩7分で利用も可能です。

