6階は現在募集がありません
コスモタワービル 6階
物件概要
コスモタワービルのテナント募集中区画
現在、空室がございません。
アクセス
コスモタワービルの物件情報
コスモタワービル(港区芝大門)は大門駅(A4番出口)から徒歩4分の賃貸オフィスです。ビル外観は細身の造りに合ったスタイリッシュなデザイン。第一京浜に面しています。周辺は飲食店やコンビニが点在している環境です。大門駅方面に足を伸ばすとより店舗が充実していますよ。
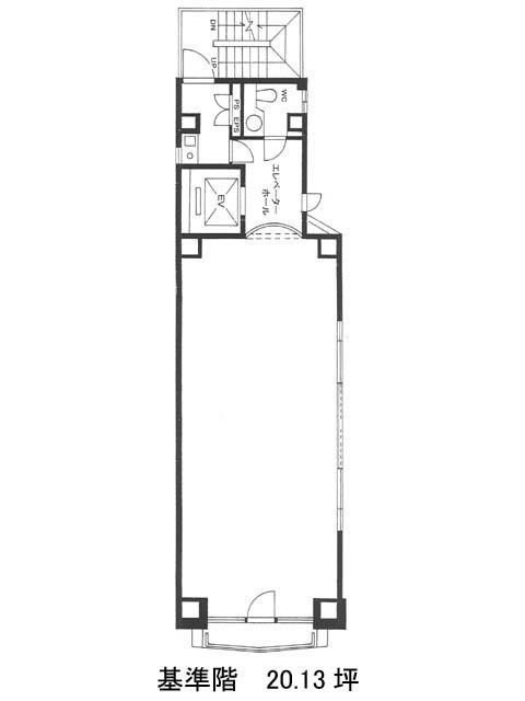
当ビルの基準となるフロアは約20坪。コンパクトなオフィスビルですが、エレベーターホールがきちんと設けられており、トイレと給湯設備もホール側に設置されているため、執務空間との区別がしっかと確保されています。執務室は長方形の無柱空間でレイアウト効率は高いでしょう。機械警備を導入しており、セキュリティ面もご安心頂けるかと思います。コスモタワービルは大門駅(A4番出口)の他に御成門駅(A2番出口)徒歩6分、浜松町駅(北口)徒歩7分で利用も可能です。

