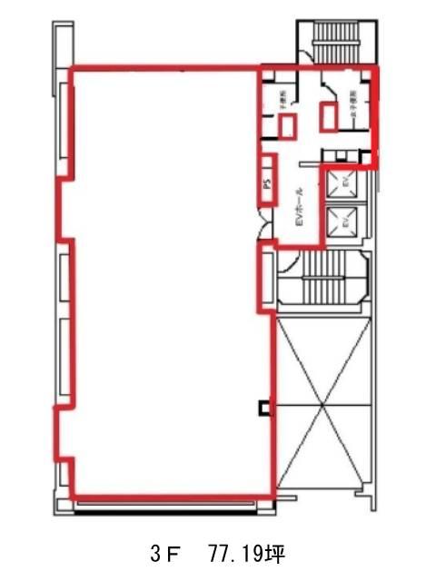
新橋6丁目ビル 3階
物件概要
物件番号
130-00140-60物件名
新橋6丁目ビル所在地
- 東京都港区新橋6-9-4
- アクセスマップ
面積
77.19坪賃料(共益費含)
:応相談応相談
入居日
2026年2月上旬保証金
応相談礼金
なし更新料
なし償却費
なし竣工
1987年12月構造
SRC規模
地上8階/地下2階トイレ
男女別空調
個別空調エレベーター
有セキュリティ
有駐車場
有耐震
新耐震基準基準階天井高
2550mm空室延床面積
122.90坪情報更新日
2025/11/28新橋6丁目ビルのテナント募集中区画
| 階数 | 面積 | 賃料(共益費含む) | 保証金 | 入居可能日 | 検討リスト | 詳細 |
|---|---|---|---|---|---|---|
| 2 | 45.71坪 | 応相談(応相談) | 応相談 | 2026年3月中旬 | ||
| 3 | 77.19坪 | 応相談(応相談) | 応相談 | 2026年2月上旬 |
…新着物件
アクセス
新橋6丁目ビルの物件情報
新橋6丁目ビル(港区新橋)は新橋駅(A1番出口)から徒歩6分の賃貸オフィスです。新橋6丁目ビルは新橋駅(A1番出口)の他に汐留駅(8番出口)徒歩7分、御成門駅(A4番出口)徒歩7分で利用も可能です。

