新橋27MTビル 2階
物件概要
物件番号
130-00328-62物件名
新橋27MTビル所在地
- 東京都港区新橋2-12-11
- アクセスマップ
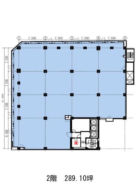
面積
289.10坪賃料(共益費含)
:応相談応相談
入居日
2026年10月保証金
応相談礼金
なし更新料
なし償却費
なし竣工
1973年3月構造
規模
地上8階/地下2階トイレ
男女別空調
セントラルエレベーター
有セキュリティ
駐車場
有耐震
耐震補強済み基準階天井高
2550mm空室延床面積
289.10坪情報更新日
2026/03/03新橋27MTビルのテナント募集中区画
| 階数 | 面積 | 賃料(共益費含む) | 保証金 | 入居可能日 | 検討リスト | 詳細 |
|---|---|---|---|---|---|---|
| 2 | 289.10坪 | 応相談(応相談) | 応相談 | 2026年10月 |
…新着物件
新橋27MTビルのアクセス
新橋27MTビルの物件情報
新橋27MTビル(港区新橋)は内幸町駅(A1番出口)から徒歩2分の賃貸オフィスです。外観は落ち着いた色を基調としたデザインで、窓がライン状に並んでいるため、とても統一感があります。エントランスホールやエレベーターホールはとても広々としていて、開放感と清潔感があります。ビル内にはOAフロアが備えられており、トイレは男女別となっております。駐車場もあるため、社用車を使う場合も便利です。周辺にはコンビニや飲食店などが複数あるため、利便性が高く、ランチを楽しむことも可能でしょう。新橋27MTビルは内幸町駅(A1番出口)の他に新橋駅(日比谷口)徒歩5分、虎ノ門ヒルズ駅(B4番出口)徒歩7分で利用も可能です。

