ひのき屋ビル 7階
物件概要
物件番号
130-00069-70物件名
ひのき屋ビル所在地
- 東京都港区新橋5-7-12
- アクセスマップ
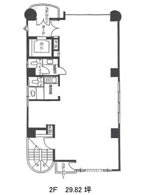
面積
31.14坪賃料(共益費含)
月額548,064円(17,600円/坪)
入居日
即保証金
3,892,500円礼金
なし更新料
なし償却費
2ケ月竣工
1989年構造
SRC規模
地上10階/地下1階トイレ
男女別空調
個別空調エレベーター
有セキュリティ
有駐車場
無耐震
新耐震基準基準階天井高
空室延床面積
31.14坪情報更新日
2026/03/12ひのき屋ビルのテナント募集中区画
| 階数 | 面積 | 賃料(共益費含む) | 保証金 | 入居可能日 | 検討リスト | 詳細 |
|---|---|---|---|---|---|---|
| 7 | 31.14坪 | 548,064円/月(17,600円/坪) | 389万円 | 即 |
…新着物件
ひのき屋ビルのアクセス
ひのき屋ビルの物件情報
ひのき屋ビル(港区新橋)は御成門駅(A4番出口)から徒歩7分の賃貸オフィスです。ひのき屋ビルは御成門駅(A4番出口)の他に新橋駅(A1番出口)徒歩7分、内幸町駅(A1番出口)徒歩8分で利用も可能です。

