VORT新橋一丁目のテナント募集中区画
…新着物件
アクセス
VORT新橋一丁目の物件情報
VORT新橋一丁目(港区新橋)は新橋駅(7番出口)から徒歩2分の賃貸オフィスです。ソリッドなファサードが街並みに映える本ビルは、スタイリッシュさと機能性を兼ね備えた現代的なオフィス空間。
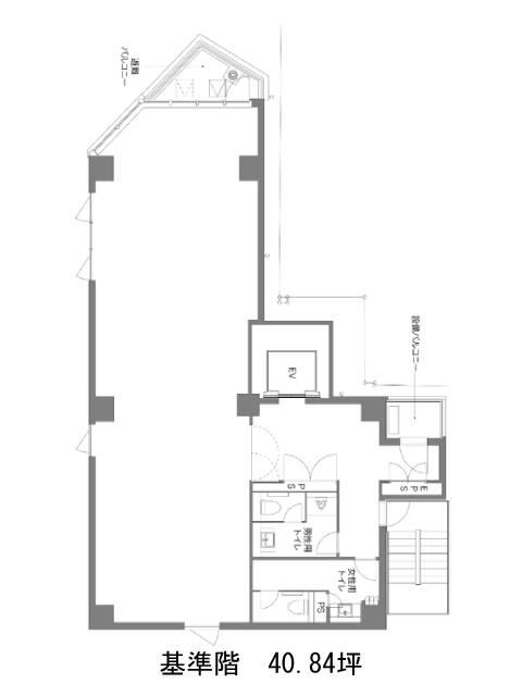
1フロアは約41坪。柱が外周に集約されていることにより、島型・フリーアドレス・ブース併用など、働き方に合わせた多様なレイアウトに柔軟に対応できます。さらにフロアによってはフルセットアッププランも用意されており、初期導入の手間を抑えた入居が可能です。
共用部には抽象画などのアート作品が展示されており、クリエイティブな感性を刺激。入居者が自然と足を止めて眺めるような、そんな“ちょっとした余白”が感じられる空間設計が光ります。
セキュリティ面も万全で、機械警備に加え、1階エントランスには顔認証機能を設置。さらにEV内や各階共用廊下にも非接触型ICリーダーが備わっており、テナントごとにセキュリティを細かく設計できるのも魅力です。共用部にはWi-Fi環境も整備されており、カジュアルなミーティングやPC作業もスムーズ。
1階には飲食店舗も併設されており、来客対応やランチの選択肢にも困りません。コンパクトながら「仕事がしやすく、少し気持ちが高まる」オフィスです。VORT新橋一丁目は新橋駅(7番出口)の他に内幸町駅(A2番出口)徒歩3分、汐留駅(3番出口)徒歩9分で利用も可能です。

