西新橋JKビルのテナント募集中区画
| 階数 | 面積 | 賃料(共益費含む) | 保証金 | 入居可能日 | 検討リスト | 詳細 |
|---|---|---|---|---|---|---|
| 5 | 69.95坪 | 1,461,955円/月(20,900円/坪) | 646万円 | 2026年5月上旬 | ||
| 7 | 69.95坪 | 1,461,955円/月(20,900円/坪) | 646万円 | 即 |
…新着物件
西新橋JKビルのアクセス
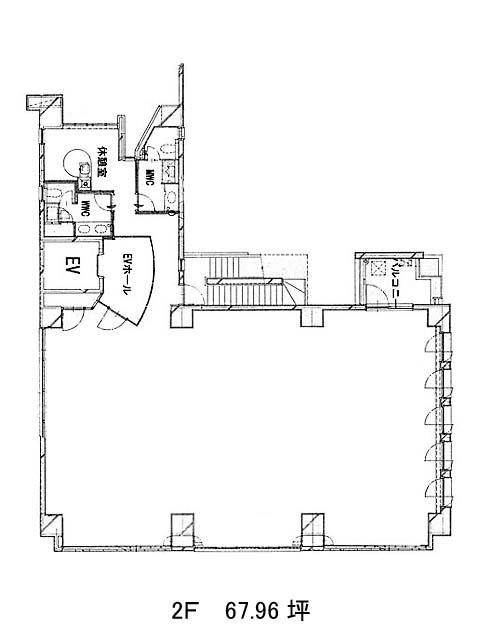
西新橋JKビルの物件情報
西新橋JKビル(港区西新橋)は虎ノ門ヒルズ駅(B2番出口)から徒歩5分の賃貸オフィスです。外観は全体的にグレーを基調とした色合いで、とてもスタイリッシュな印象があります。エントランスホールやエレベーターホールはとても落ち着いた空間となっております。また周辺にはコンビニや飲食店、郵便局、銀行などが複数あるためとても利便性が高いです。ビル内にはOAフロアが備えられており、トイレは男女別となっております。基準階は約70坪あり、室内は長方形の整形オフィスのため、効率の良いレイアウトが組めそうです。西新橋JKビルは虎ノ門ヒルズ駅(B2番出口)の他に御成門駅(A5番出口)徒歩8分、虎ノ門駅(B6番出口)徒歩9分で利用も可能です。

