愛宕イーストビルのテナント募集中区画
| 階数 | 面積 | 賃料(共益費含む) | 保証金 | 入居可能日 | 検討リスト | 詳細 |
|---|---|---|---|---|---|---|
| 3 | 163.43坪 | 応相談(応相談) | 応相談 | 2026年7月中旬 | ||
| 4 | 153.72坪 | 応相談(応相談) | 応相談 | 即 | ||
| 6 | 141.13坪 | 応相談(応相談) | 応相談 | 即 |
…新着物件
愛宕イーストビルのアクセス
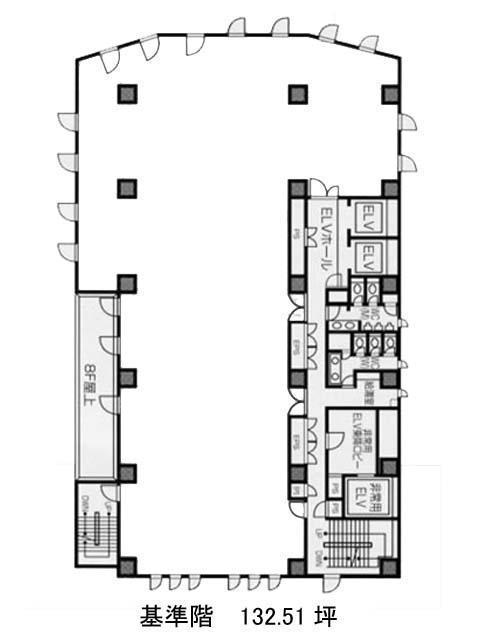
愛宕イーストビルの物件情報
愛宕イーストビル(港区西新橋)は虎ノ門ヒルズ駅(B2番出口)から徒歩6分の賃貸オフィスです。地上14階建ての物件ということもあり、上層階からの眺望はとても良好です。外観は全体的にグレーを基調とした色合いで、とてもシンプルなデザインとなっております。エントランスホールやエレベーターホールは清潔感があり、落ち着いた空間となっております。また周辺にはコンビニや飲食店などが複数あるため、ランチも楽しめるでしょう。主な設備面としては、個別空調、OAフロア、男女別トイレ、エレベーターは3基設置されています。愛宕イーストビルは虎ノ門ヒルズ駅(B2番出口)の他に御成門駅(A5番出口)徒歩7分、神谷町駅(3番出口)徒歩8分で利用も可能です。

