ル・グラシエルBLDG.70 7階
物件概要
物件番号
131-00307-80物件名
ル・グラシエルBLDG.70所在地
- 東京都港区西新橋1-5-9
- アクセスマップ
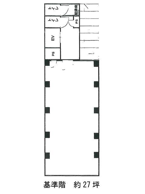
面積
27.19坪賃料(共益費含)
月額538,362円(19,800円/坪)
入居日
2026年5月上旬保証金
2,039,250円礼金
なし更新料
なし償却費
なし竣工
1967年2月構造
SRC規模
地上8階/地下1階トイレ
男女別空調
個別空調エレベーター
有セキュリティ
有駐車場
無耐震
旧耐震基準基準階天井高
2500mm空室延床面積
27.19坪情報更新日
2026/03/03ル・グラシエルBLDG.70のテナント募集中区画
| 階数 | 面積 | 賃料(共益費含む) | 保証金 | 入居可能日 | 検討リスト | 詳細 |
|---|---|---|---|---|---|---|
| 7 | 27.19坪 | 538,362円/月(19,800円/坪) | 203万円 | 2026年5月上旬 |
…新着物件
ル・グラシエルBLDG.70のアクセス
ル・グラシエルBLDG.70の物件情報
ル・グラシエルBLDG.70(港区西新橋)は内幸町駅(A4a番出口)から徒歩2分の賃貸オフィスです。ル・グラシエルBLDG.70は内幸町駅(A4a番出口)の他に虎ノ門駅(9番出口)徒歩5分、新橋駅(7番出口)徒歩5分で利用も可能です。

