1東洋海事ビル 5階
物件概要
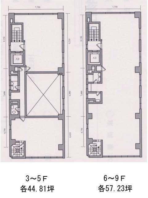
1東洋海事ビルのテナント募集中区画
| 階数 | 面積 | 賃料(共益費含む) | 保証金 | 入居可能日 | 検討リスト | 詳細 |
|---|---|---|---|---|---|---|
| 5 | 44.81坪 | 応相談(応相談) | 応相談 | 2026年4月 | ||
| 9 | 57.23坪 | 応相談(応相談) | 応相談 | 即 |
…新着物件
1東洋海事ビルのアクセス
1東洋海事ビルの物件情報
1東洋海事ビル(港区西新橋)は内幸町駅(A3番出口)から徒歩1分の賃貸オフィスです。1980年竣工、外観は落ち着いた色合いをしており、前面ガラス張りになっているため、とてもスタイリッシュな印象があるビルです。ビル内はリニューアル工事が行われおり、OAフロア、トイレは男女別となっております。駐車場もあるため、社用車を使う場合は便利です。セキュリティは機械警備を導入しており、エレベーターは1基設置です。周辺にはコンビニや飲食店、郵便局、銀行があるためとても利便性が高いでしょう。1東洋海事ビルは内幸町駅(A3番出口)の他に新橋駅(日比谷口)徒歩5分、虎ノ門駅(9番出口)徒歩7分で利用も可能です。

