7階は現在募集がありません
1フロア募集区画あり

フロンティア御成門 7階

前の写真 次の写真

物件概要

物件番号

131-00042-70

物件名

フロンティア御成門

所在地

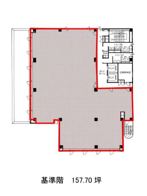
面積

157.70坪

賃料(共益費含)


入居日

募集終了

保証金

礼金

更新料

償却費

竣工

1985年9月

構造

SRC

規模

地上8階/地下1階

トイレ

男女別

空調

セントラル

エレベーター

セキュリティ

駐車場

耐震

新耐震基準

基準階天井高

2450mm

空室延床面積

157.70坪

最寄駅

情報更新日

2026/04/21

フロンティア御成門のテナント募集中区画

階数 面積 賃料(共益費含む) 保証金 入居可能日 検討リスト 詳細
2 157.70坪 応相談(応相談) 応相談
…新着物件

フロンティア御成門のアクセス

フロンティア御成門の物件情報

フロンティア御成門(港区西新橋)は御成門駅(A5番出口)から徒歩3分の賃貸オフィスです。
駅至近、西新橋三丁目交差点に面する視認性の高い立地に位置するオフィスビルです。2020年にはエントランスや共用部のリニューアルが実施され、快適性も向上しています。
基準階は約158坪。柱は一部存在しますが、逆にレイアウトゾーンを明確に分けられる設計の自由度を持ち、業種・組織構成に応じた空間づくりがしやすい点が魅力です。
また、OAフロア、機械警備、敷地内駐車場を完備しており、日々の業務をスムーズにサポートしてくれる設備も揃っています。
フロンティア御成門は御成門駅(A5番出口)の他に神谷町駅(3番出口)徒歩7分、虎ノ門ヒルズ駅(B2番出口)徒歩10分で利用も可能です。

近隣のエリア・駅から探す