霊南坂ビルのテナント募集中区画
| 階数 | 面積 | 賃料(共益費含む) | 保証金 | 入居可能日 | 検討リスト | 詳細 |
|---|---|---|---|---|---|---|
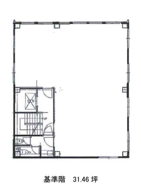
| 3 | 31.46坪 | 550,000円/月(17,483円/坪) | 300万円 | 即 | ||
| 4 | 31.46坪 | 550,000円/月(17,483円/坪) | 300万円 | 即 |
…新着物件
霊南坂ビルのアクセス
霊南坂ビルの物件情報
霊南坂ビル(港区赤坂)は溜池山王駅(13番出口)から徒歩4分の賃貸オフィスです。霊南坂ビルは溜池山王駅(13番出口)の他に六本木一丁目駅(3番出口)徒歩6分、虎ノ門ヒルズ駅(A2番出口)徒歩8分で利用も可能です。

