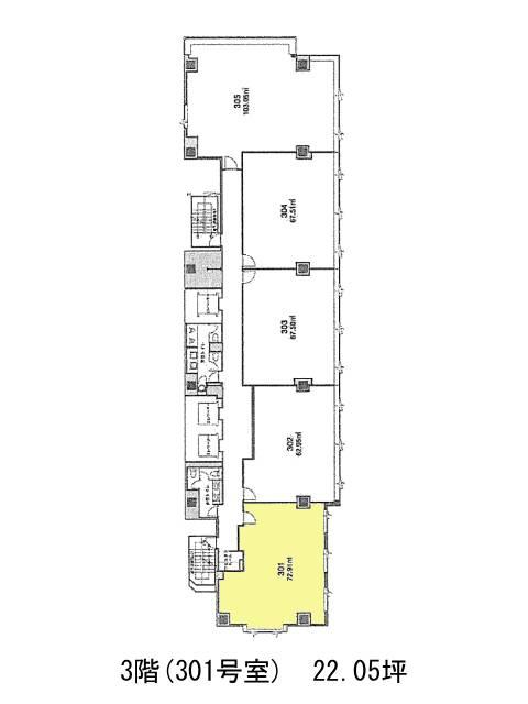
H1O赤坂 301
物件概要
H1O赤坂のテナント募集中区画
| 階数 | 面積 | 賃料(共益費含む) | 保証金 | 入居可能日 | 検討リスト | 詳細 |
|---|---|---|---|---|---|---|
| 301 | 22.05坪 | 応相談(応相談) | 応相談 | 相談 | ||
| 304 | 20.42坪 | 応相談(応相談) | 応相談 | 相談 | ||
| 601 | 32.85坪 | 応相談(応相談) | 応相談 | 相談 | ||
| 602 | 57.77坪 | 応相談(応相談) | 応相談 | 相談 | ||
| 701 | 32.85坪 | 応相談(応相談) | 応相談 | 相談 | ||
| 801 | 32.85坪 | 応相談(応相談) | 応相談 | 相談 |
…新着物件
アクセス
H1O赤坂の物件情報
H1O赤坂(港区赤坂)は赤坂見附駅(出口)から徒歩2分の賃貸オフィスです。ビジネスの拠点としての利便性と、働く人の快適さを両立した新しい形の複合施設です。専用個室オフィスは20坪台~50坪台まで複数プランを用意し、利用人数や用途に応じて柔軟にレイアウト可能。全室個別空調に加え、開放感のあるスケルトン天井も採用されており、集中とリラックスのバランスを保てる設計です。
さらに、1・2階には懐かしさと温かみを感じるレトロ調のフードホールが併設されており、ランチや打ち合わせの合間のちょっとした気分転換にもぴったり。屋上には緑あふれるテラス空間もあり、都心にいながら自然を感じられるのもポイント高いです。
共用部も充実していて、デザイン性の高い会議室やWEBROOM、ゲスト対応可能なラウンジ、ドリンクサービス、さらにはルームクリーニングなどのビジネス支援サービスまで完備。赤坂エリアならではのアクセス性と、サービスオフィスの先を行く快適さを備えた一棟です。H1O赤坂は赤坂見附駅(出口)の他に赤坂駅(1番出口)徒歩4分、永田町駅(8番出口)徒歩6分で利用も可能です。

