セルクル赤坂 2階新着
物件概要
物件番号
133-00178-20物件名
セルクル赤坂所在地
- 東京都港区赤坂4-2-25
- アクセスマップ
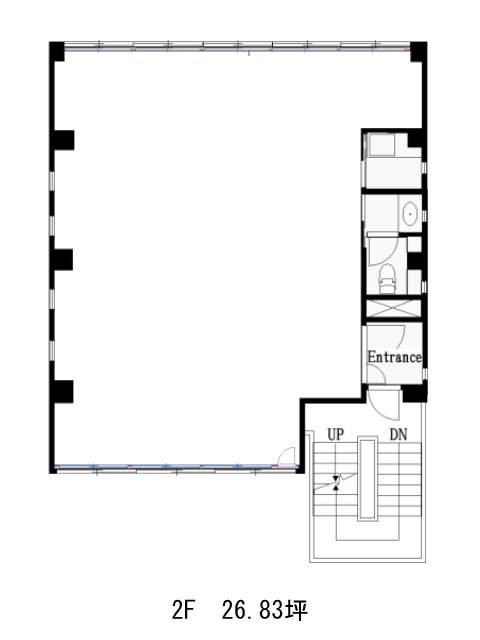
面積
26.83坪賃料(共益費含)
月額468,000円(17,443円/坪)
入居日
2026年4月保証金
1,276,410円礼金
1ケ月更新料
新1ケ月償却費
1ケ月竣工
1988年9月構造
SRC規模
地上3階/地下1階トイレ
男女共用空調
エレベーター
無セキュリティ
駐車場
無耐震
新耐震基準基準階天井高
空室延床面積
26.83坪情報更新日
2026/02/27セルクル赤坂のテナント募集中区画
| 階数 | 面積 | 賃料(共益費含む) | 保証金 | 入居可能日 | 検討リスト | 詳細 |
|---|---|---|---|---|---|---|
| 2 | 26.83坪 | 468,000円/月(17,443円/坪) | 127万円 | 2026年4月 |
…新着物件
セルクル赤坂のアクセス
セルクル赤坂の物件情報
セルクル赤坂(港区赤坂)は赤坂見附駅(A番出口)から徒歩6分の賃貸オフィスです。セルクル赤坂は赤坂見附駅(A番出口)の他に赤坂駅(1番出口)徒歩8分、永田町駅(7番出口)徒歩8分で利用も可能です。

