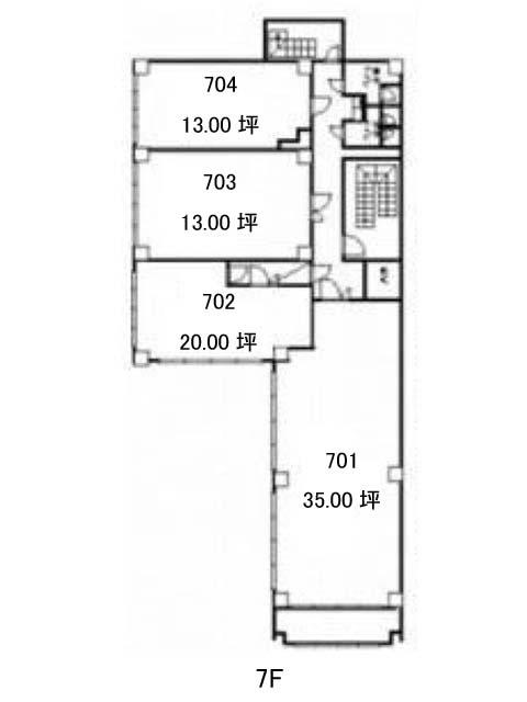
7階 702は現在募集がありません
第4文成ビル 7階 702
物件概要
第4文成ビルのテナント募集中区画
現在、空室がございません。
アクセス
第4文成ビルの物件情報
第4文成ビル(港区赤坂)は赤坂駅(7番出口)から徒歩5分の賃貸オフィスです。第4文成ビルは赤坂駅(7番出口)の他に乃木坂駅(1番出口)徒歩7分、六本木駅(8番出口)徒歩9分で利用も可能です。

