5階は現在募集がありません
2フロア募集区画あり

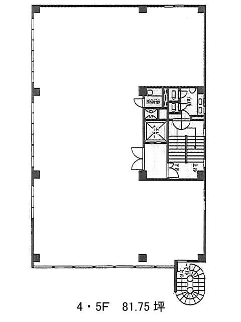
近文ビル 5階

前の写真 次の写真

物件概要

物件番号

133-00403-100

物件名

近文ビル

所在地

面積

81.75坪

賃料(共益費含)


入居日

募集終了

保証金

礼金

更新料

償却費

竣工

1971年1月

構造

RC

規模

地上7階/地下1階

トイレ

男女別

空調

個別空調

エレベーター

セキュリティ

駐車場

耐震

耐震補強済み

基準階天井高

2350mm

空室延床面積

115.55坪

最寄駅

情報更新日

2026/01/21

近文ビルのテナント募集中区画

階数 面積 賃料(共益費含む) 保証金 入居可能日 検討リスト 詳細
地下1 33.80坪 371,800円/月(11,000円/坪) 101万円
4 81.75坪 1,618,650円/月(19,800円/坪) 1,062万円
…新着物件

アクセス

近文ビルの物件情報

近文ビル(港区赤坂)は赤坂駅(7番出口)から徒歩4分の賃貸オフィスです。
ビルは全体的に黒系の色合いをしており、デザイン性のある外観です。エントランスはとても落ち着いた空間となっております。。基準階は約80坪あり、室内はコの字型の形をしていますが、余計な柱が無いため、比較的レイアウトは組みやすいでしょう。貸室内はOAフロアが備えられており、トイレは男女別となっております。駐車場も併設してあるため、社用車を利用する場合は便利でしょう。また周辺にはコンビニや飲食店、郵便局があるためとても利便性が高いです。
近文ビルは赤坂駅(7番出口)の他に乃木坂駅(1番出口)徒歩9分、六本木駅(8番出口)徒歩10分で利用も可能です。

近隣のエリア・駅から探す