近文ビルのテナント募集中区画
| 階数 | 面積 | 賃料(共益費含む) | 保証金 | 入居可能日 | 検討リスト | 詳細 |
|---|---|---|---|---|---|---|
| 4 | 81.75坪 | 1,618,650円/月(19,800円/坪) | 1,062万円 | 即 |
…新着物件
近文ビルのアクセス
近文ビルの物件情報
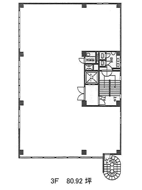
近文ビル(港区赤坂)は赤坂駅(7番出口)から徒歩4分の賃貸オフィスです。ビルは全体的に黒系の色合いをしており、デザイン性のある外観です。エントランスはとても落ち着いた空間となっております。。基準階は約80坪あり、室内はコの字型の形をしていますが、余計な柱が無いため、比較的レイアウトは組みやすいでしょう。貸室内はOAフロアが備えられており、トイレは男女別となっております。駐車場も併設してあるため、社用車を利用する場合は便利でしょう。また周辺にはコンビニや飲食店、郵便局があるためとても利便性が高いです。近文ビルは赤坂駅(7番出口)の他に乃木坂駅(1番出口)徒歩9分、六本木駅(8番出口)徒歩10分で利用も可能です。

