4階は現在募集がありません
3フロア募集区画あり
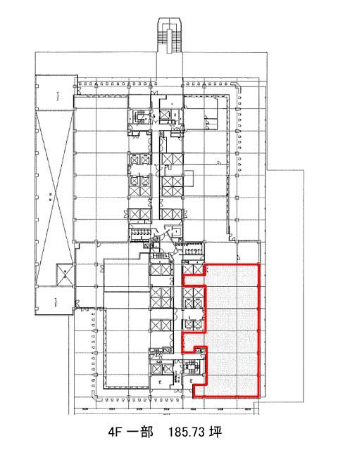
アーク森ビル 4階
物件概要
物件番号
133-00005-20物件名
アーク森ビル所在地
- 東京都港区赤坂1-12-32
- アクセスマップ
面積
185.73坪賃料(共益費含)
−入居日
募集終了保証金
−礼金
−更新料
−償却費
−竣工
1986年3月構造
SRC規模
地上37階/地下4階トイレ
男女別空調
セントラルエレベーター
有セキュリティ
駐車場
有耐震
新耐震基準基準階天井高
2600mm空室延床面積
1274.20坪情報更新日
2026/04/01アーク森ビルのテナント募集中区画
| 階数 | 面積 | 賃料(共益費含む) | 保証金 | 入居可能日 | 検討リスト | 詳細 |
|---|---|---|---|---|---|---|
| 14 | 411.50坪 | 応相談(応相談) | 応相談 | 2026年6月上旬 | ||
| 14 | 55.30坪 | 応相談(応相談) | 応相談 | 2026年7月上旬 | ||
| 15 | 807.40坪 | 応相談(応相談) | 応相談 | 2026年4月上旬 |
…新着物件
アーク森ビルのアクセス
アーク森ビルの物件情報
アーク森ビル(港区赤坂)は六本木一丁目駅(3番出口)から徒歩2分の賃貸オフィスです。地上37階建ての高層ビルを縦にはしる白いラインが美しい、圧倒的存在感のある外観です。エントランスホールやエレベーターホールはとても広々としており、開放感と高級感を感じられます。ビル内にはスーパーや飲食店などが多数入っているため、休憩時などに活用しやすいでしょう。またOAフロアが備えられており、トイレは男女別となっております。駐車場もあるため、社用車を使う場合も便利です。周辺は整備されたオフィス街ですが、周辺には歴史ある神社や大使館が複数立地しています。アーク森ビルは六本木一丁目駅(3番出口)の他に溜池山王駅(13番出口)徒歩3分、国会議事堂前駅(5番出口)徒歩11分で利用も可能です。

