陶香堂ビル 2階
物件概要
物件番号
133-00716-10物件名
陶香堂ビル所在地
- 東京都港区赤坂3-21-12
- アクセスマップ
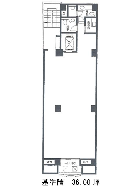
面積
36.00坪賃料(共益費含)
月額792,000円(22,000円/坪)
入居日
即保証金
3,888,000円礼金
1ケ月更新料
新1ケ月償却費
1ケ月竣工
1990年5月構造
SRC規模
地上7階/地下1階トイレ
男女別空調
個別空調エレベーター
有セキュリティ
有駐車場
無耐震
新耐震基準基準階天井高
2450mm空室延床面積
72.00坪情報更新日
2026/02/06陶香堂ビルのテナント募集中区画
| 階数 | 面積 | 賃料(共益費含む) | 保証金 | 入居可能日 | 検討リスト | 詳細 |
|---|---|---|---|---|---|---|
| 2 | 36.00坪 | 792,000円/月(22,000円/坪) | 388万円 | 即 | ||
| 5 | 36.00坪 | 792,000円/月(22,000円/坪) | 388万円 | 即 |
…新着物件
陶香堂ビルのアクセス
陶香堂ビルの物件情報
陶香堂ビル(港区赤坂)は赤坂見附駅(10番出口)から徒歩3分の賃貸オフィスです。陶香堂ビルは赤坂見附駅(10番出口)の他に永田町駅(8番出口)徒歩5分、赤坂駅(1番出口)徒歩6分で利用も可能です。

