3階は現在募集がありません
2フロア募集区画あり

陶香堂ビル 3階

前の写真 次の写真

物件概要

物件番号

133-00716-20

物件名

陶香堂ビル

所在地

面積

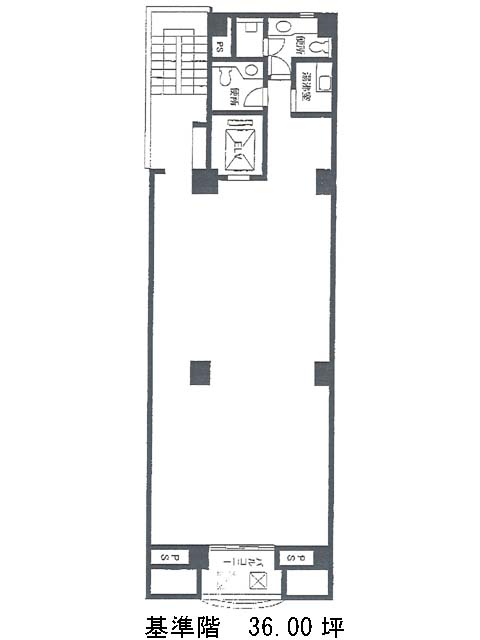
36.00坪

賃料(共益費含)


入居日

募集終了

保証金

礼金

更新料

償却費

竣工

1990年5月

構造

SRC

規模

地上7階/地下1階

トイレ

男女別

空調

個別空調

エレベーター

セキュリティ

駐車場

耐震

新耐震基準

基準階天井高

2450mm

空室延床面積

72.00坪

最寄駅

情報更新日

2026/04/02

陶香堂ビルのテナント募集中区画

階数 面積 賃料(共益費含む) 保証金 入居可能日 検討リスト 詳細
2 36.00坪 1,069,200円/月(29,700円/坪) 432万円
5 36.00坪 792,000円/月(22,000円/坪) 388万円
…新着物件

陶香堂ビルのアクセス

陶香堂ビルの物件情報

陶香堂ビル(港区赤坂)は赤坂見附駅(10番出口)から徒歩3分の賃貸オフィスです。
陶香堂ビルは赤坂見附駅(10番出口)の他に永田町駅(8番出口)徒歩5分、赤坂駅(1番出口)徒歩6分で利用も可能です。

近隣のエリア・駅から探す